Các giao dịch thuê/mua căn hộ Vinhomes Central Park luôn diễn ra nhộn nhịp, chứng tỏ sức hút của dự án không hề giảm cho dù khu căn hộ đã hoàn thiền từ rất lâu. Trong đó tòa Landmark 5 là một trong những khu có lượng giao dịch tương đối lớn.
Các căn hộ từ 1 đến 3 phòng ngủ luôn trong tình trạng đầy. Thuê-cho thuê căn hộ 1 phòng ngủ tại tòa Landmark 5 giá ra sao, những căn hộ nào đang cho thuê?… Sẽ được giải đám cho quý khách trong bài viết này.
Thông tin Cho thuê căn hộ Vinhomes Central Park tòa Landmark 5
Nằm trong quần thể Vinhomes Central Park, khu đô thị đẳng cấp lấy cảm hứng từ “Giấc mơ Mỹ”, Landmark 5 mang đến cho mọi cư dân chốn an cư đáng mơ ước.
Một quần thể siêu đô thị được thiết kế theo phong cách đẳng cấp thời thượng với tầm nhìn bao quát hướng sông, công viên xanh mát và hướng trung tâm thành phố sôi động, sầm uất. Cho thuê căn hộ Vinhomes Central Park tòa Landmark 5 1 phòng ngủ tiện nghi giữa không gian sống thanh bình. Nằm tại phía Tây Bắc tháp Landmark 81, tòa Landmark 5 hưởng trọn khuôn viên xanh mát cùng những những tiện ích cao cấp bao trùm xung quanh. Tháp căn hộ được kết nối tổng hoàn với toàn khu bằng lối đi bộ và cảnh quan được bài trí khoa học, hợp lý tạo nên chốn an cư bình yên, thư giãn.
- Tổng số tầng: 48 tầng
- Tổng số căn hộ: 650 căn
- Diện tích từ 50 – 109m2
- Căn hộ hiện đại cao cấp từ 1-3 phòng ngủ
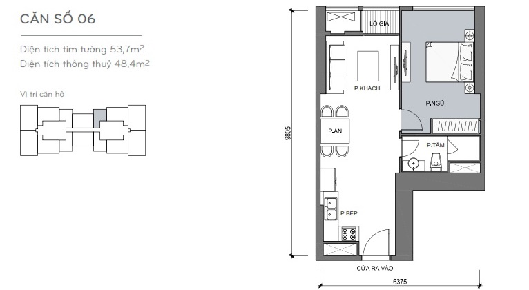
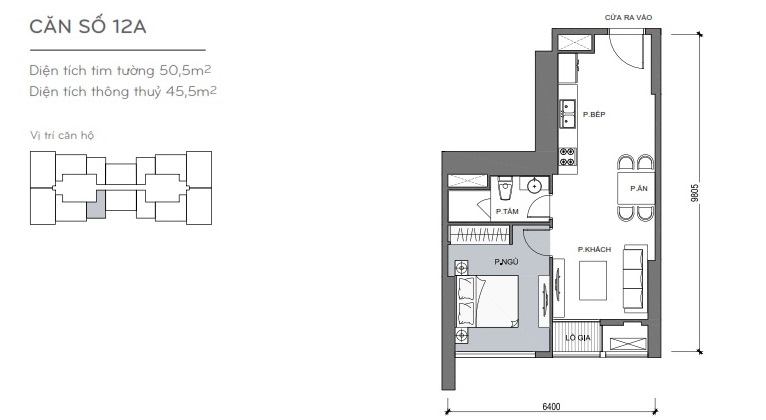
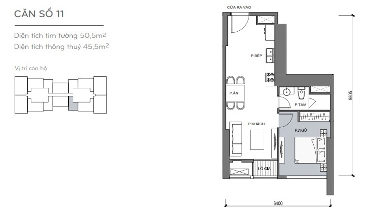
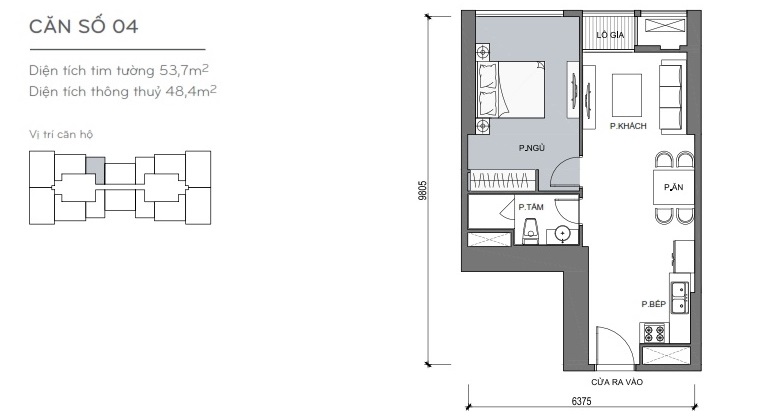
- Căn hộ 1 phòng ngủ có các diện tích: 50,5m2, 53,7m2.
- Căn hộ sân vườn (Duplex Garden House)
- Căn hộ nhà phố thương mại (Duplex Shophouse)
- Biệt thự trên không (Penthouse)
- Tổng số căn hộ: 14 căn/sàn
- Tổng số thang máy: 10 thang tốc độ cao và 2 thang thoát hiểm
- Chiều rộng hành lang: 2.3m
- Hầm để xe: 2 tầng

Giá thuê căn hộ 1 phòng ngủ tòa Landmark 5
◕ Căn hộ 1 phòng ngủ nhà trống giá thuê từ 470 – 500 USD/tháng.
◕ Căn hộ 1 phòng ngủ trang bị nội thất đầy đủ giá thuê từ 515 – 650 USD/tháng.
* Giá thuê có thể tăng hoặc giảm tùy theo khoảng tầng, tình trạng nội thất mới hay cũ hoặc theo thay đổi của chủ nhà. Liên hệ với chúng tôi ✆ 0902321889 hoặc ✆ 0938188633 để được tư vấn chi tiết và chính xác nhất.
»» Xem thêm:
Cho thuê căn hộ chung cư Vinhomes Central Park giá chỉ 12,5 tr/tháng
Căn hộ Vinhomes Bình Thạnh tầng thấp cho thuê $800 full nội thất cao cấp
Cho thuê căn hộ cao cấp 1PN Vinhomes Central Park tầng cao L5
Căn hộ Vinhomes Bình Thạnh cho thuê Office 47m2 nội thất châu Âu
Vinhomes Central Park tòa Landmark 5 với nhiều ưu thế
Chọn thuê căn hộ Landmark 5 1 phòng ngủ, cư dân không phải lo lắng mọi vấn đề kết nối và tiện ích phục vụ công việc và cuộc sống.
Vị trí đắc địa
Tọa lạc tại vị trí đắc địa trong dự án, cư dân dễ dàng kết nối đến các khu tiện ích dịch vụ trong nội khu dự án; kết nối đến công viên ven sông cũng như các trục đường chính dẫn vào toàn khu đô thị.

Từ căn hộ landmark 5 kết nối đến Quận 1 chỉ 3 phút lái xe và kết nối thuận tiện đến mọi khu vực với các trục giao thông huyết mạch đường bộ, đường thủy, đường sắt (tuyến Metro).
Đặc biệt tháp căn hộ Landmark 5 nằm kế cận tháp Landmark 81, mang đến cho cư dân trải nghiệm mua sắm tiện ích và đẳng cấp thời thượng. Cùng với đó là được bố trí thuận lợi ngay sát các khu vực hạ tầng tiện ích của dự án cho thuê căn hộ Vinhomes Central Park như trường học liên cấp Vinschool; bệnh viện đa khoa quốc tế Vinmec; bến du thuyền sang trọng.
Tiện nghi, tiện ích đủ đầy
Cư dân tận hưởng những dịch vụ gia đình 5* trogn không gian sống sang trọng, phong cách sống đẳng cấp hướng đến một chuẩn mực cho công dân toàn cầu.
- Thỏa sức dạo chơi, thư giãn tại khu quảng trường Landmark rộng lớn
- Kết nối trực tiếp tới khu trung tâm thương mại
- Thỏa sức mua sắm tại phố mua sắm
- Thư giãn tại sky bar, khách sạn 5* trong tháp Landmark 5
- Tản bộ hóng mát trong công viên nội khu và vườn cây xanh mát
- Thư giãn tại khu vực đài phun nước tiểu cành
- Có khu vui chơi dành riêng cho trẻ em
- Không gian riêng cho người cao tuổi
- Khu nhà sinh hoạt cộng đồng
- Khu sinh hoạt chung ngoài trời
- Khu thể thao ngoài trời
- Khu phòng tập gym, spa làm đẹp
- Sảnh Lounge, sảnh lễ tân chuyên nghiệp, sang trọng
Không gian sống sang trọng
Cho thuê căn hộ Vinhomes Central Park tòa Landmark 5 loại 1 phòng ngủ được trang bị đầy đủ nội thất hoàn hảo cao cấp. Phong cách thiết thiết kế, bài trí sang trọng và khoa học nhằm tạo tối đa sự thoáng rộng, thoải mái cho không gian sinh hoạt gia đình.
Đặc biệt căn hộ thiết kế tối đa đón nhận ánh sáng tự nhiên, đón gió, đón nắng, thư thái hoàn hảo nhất. Kết hợp công năng là căn hộ để ở và không gian văn phòng sang trọng nên căn hộ Landmark 5 1 phòng ngủ cho thuê vô cùng tuyệt vời để giao lưu, gặp gỡ đối tác ngay tại không gian căn hộ của mình.
Với hệ thống tiện ích đa dạng đẳng cấp thương hiệu Vinhomes, vị trí kết nối đắc địa thuận tiện, không gian sống thoáng mát đã tạo nên chốn an cư chẳng thể lý tưởng hơn tại Vinhomes Central Park tòa Landmark 5.



